In precomputer days, drafters used sets of transparent overlays on their drafting tables. These were sheets that stacked on top of one another, and the drafters could see through several at a time. Specific kinds of information were drawn on each overlay, all related spatially so that several overlays might all be drawn to the same floor plan. Each overlay had small holes punched near the corners so the drafter could position it onto buttons, called registration points, that were taped to the drawing board. Because all overlays had holes punched at the same locations with respect to the drawing, information on the set of overlays was kept in alignment.
To help you organize your drawing, AutoCAD provides you with an amazing tool, called layers, which is a computerized metaphor for the transparent overlays, only much more powerful and flexible. In manual drafting, you could use only four or five overlays at a time before the information on the bottom overlay became unreadable. In AutoCAD, you are not limited in the number of layers you can use. You can have hundreds of layers, and complex CAD drawings often do.
To understand what layers are and why they are so useful, think again about the transparent overlay sheets used in hand drafting. Each overlay is designed to be printed. The bottom sheet may be a basic floor plan. To create an overlay sheet for a structural drawing, the drafter traces over the lines of the floor plan that they need in the overlay and then adds new information pertinent to that sheet. For the next overlay, the same thing is done again. Each sheet, then, contains some information in common, in addition to data unique to that sheet.
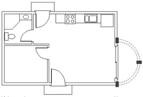
In AutoCAD, using layers allows you to generate all the sheets for a set of overlays from a single file (see Figure 6.1). Nothing needs to be drawn twice or traced. The wall layout will be on one layer and the roof lines on another. Doors will be on a third. You can control the visibility of layers so that all objects residing on a layer can be made temporarily invisible. This feature lets you put all information keyed to a particular floor plan in one .dwg file and from that drawing, to produce a series of derived drawings, such as the foundation plan, the second floor plan, the reflected ceiling plan, and the roof plan, by making different combinations of layers visible for each drawing. When you make a print, you decide which layers will be visible. Consequently, in a set of drawings, each sheet based on the floor plan will display a unique combination of layers, all of which are in one file.

Figure 6.1: A diagram of several drawings coming from one file
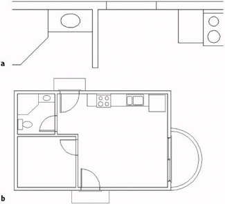
Layers, as an organization tool, allow you to classify the various objects in a computerized drawing—lines, arcs, circles, and so on—according to the component of the building they represent, such as doors, walls, and windows. Each layer is assigned a color, and all objects placed on the layer take on that assigned color. This lets you easily distinguish between objects that represent separate components of the building (see Figure 6.2). And you can quickly tell what layer a given object or group of objects is on.

Figure 6.2: Separate layers combined to make a drawing
First, we’ll look at the procedure for achieving this level of organization, which is to set up the new layers and then move existing objects onto them. Following that, you will learn how to create new objects on a specific layer.
All AutoCAD drawings have one layer in common—the 0 layer. The 0 layer is the default layer in all new drawings. If you don’t add any new layers on a drawing, everything you create in that drawing will be on the 0 layer. Everything so far in the cabin drawing has been drawn on the 0 layer.
Objects and layers are analogous to people and countries: Just as all people must reside in some country, so must all objects be on some layer.
All objects in AutoCAD are assigned a layer. In this book, I will refer to objects assigned to a particular layer as “being on” that layer. You can place objects on a layer in two ways: you can move them to the layer, or you can create them on the layer in the first place. You will learn how to do both in this chapter. But first you need to learn how to set up layers. To see how this is done, you will create seven new layers for your cabin drawing—Walls, Doors, Steps, Balcony, Fixtures, Headers, and Roof—and then move the existing objects in your drawing onto the first five of these layers. After that, you will create new objects on the Header and Roof layers. Let’s begin by creating a few new layers.

To the right is the Properties toolbar with four drop-down lists for controlling linetypes, colors, and other layer properties. These are the default positions for these toolbars, but your screen may have a different arrangement.

A linetype is the appearance style of a line, such as continuous, dashed, dash-dot, and so on.

Figure 6.3: The Layer Properties Manager dialog box
To the left of the Layer List box is the Layer Filters tree view box. Each box has three icons and buttons above it, and there are two check boxes and four buttons at the bottom of the dialog box. Before setting up new layers, look for a moment at the Layer List box.
We’ll look more closely at the Layer Filters tree view box in Chapter 12.
The Layer List Box
Each layer has four properties: Color, Linetype, Lineweight, and Plot Style. Look at the 0 layer row in the list, and notice the square and the word White in the Color column. The square is black (or white if you have a black background for your drawing area), but the name of the color is White whether the square is black or white. Continuous is in the Linetype column. This tells us that the 0 layer has been assigned the color White (black or white) and the Continuous linetype by default.
| Note |
If you set up your drawing area so that the background is white, AutoCAD automatically changes the color assigned to White in the Layer List box to black, so lines that would normally appear as white on a black background now appear as black on the white background. When you then switch to a black background, the black line changes to a white line. This allows the line to be visible regardless of the background color, and AutoCAD doesn’t have to assign a new color to a layer that has been assigned the White color when the user switches background colors. |
The five columns to the left of the Color column are titled Status, Name, On, Freeze, and Lock. They have picture icons or text in the 0 layer row. These columns represent some of the status modes—or states—of the layer and control whether objects on a layer are visible, whether they can be changed, or whether a layer actually has objects on it. I’ll discuss the visibility and status of layers later in this chapter, and I’ll discuss the columns to the right of the Linetype column—Line, Plot Style, Plot, and Description—in Chapter 14. Don’t worry about them right now.
Creating New Layers and Assigning Colors
Let’s create a few new layers, name them, and assign them colors.

Figure 6.4: The Layer Properties Manager dialog box with a new layer named Walls
For LT users, your Select Color dialog box has only one tab—the Index Color tab—which is the one we’ll be using in this book.

Figure 6.5: The Index Color tab in the Select Color dialog box
As you create your new list of layers and assign them colors, notice how each color looks in your drawing. Some are easier to see on a screen with a light background, and others do better against a dark background. In this book, I will be assigning colors that work well with a black background. If your system has a white background, you might want to use darker colors, which can be found in the array of 240 color swatches in the upper half of the Index Color tab.
Let’s continue creating new layers and assigning them colors. You’ll master this procedure as you add a new layer or two in each chapter throughout the rest of the book.
|
Layer Name |
Color |
|---|---|
|
Steps |
9 (Light Gray) |
|
Balcony |
Green |
|
Fixtures |
Magenta |
|
Headers |
Yellow |
|
Roof |
Blue |
| Tip |
The color blue may or may not read well on a black background. If you don’t like the way it looks, try picking a lighter shade of blue from the array of 240 colors on the Index Color tab. |
When finished, the layer list should have eight layers with their assigned colors in the color squares of each row (see Figure 6.6). All layers are assigned the Continuous linetype by default. This is convenient because most building components are represented in the floor plan by continuous lines, but the roof— because of its position above the walls—needs to be represented by a dashed line. Later you will assign a Dashed linetype to the Roof layer.

Figure 6.6: The Layer List box, in the Layer Properties Manager dialog box, with the seven new layers and the 0 layer
Naming Layers
You can name layers in a variety of ways. With their different color assignments, layers make it possible for you to easily distinguish which objects in your drawing represent walls or other parts of your building. Most offices follow a standard for organizing layers by name, color, and linetype. The American Institute of Architects publishes Layering Standards, which are often adapted by architecture firms and customized to fit their specific needs. Before AutoCAD version 2000, lineweights in AutoCAD drawings were controlled by color, so the layer standards were developed around this determining factor. Since version 2000, this is no longer the case. As a result, you can expect that layering standards used for years will be changing. With the cabin drawing, you will start out developing a basic set of layers. Once you learn how to manage the set we are using here, tackling more complex layering systems will come naturally.
| Note |
When you name layers, you can use upper- and lowercase letters, and AutoCAD will preserve them. But AutoCAD does not distinguish between them and treats Walls, WALLS, and walls as the same layer. |
Using AutoCAD’s Traditional Colors
The traditional set of 255 colors for AutoCAD is set up in such a way that the first 7 colors are named (Blue, Red, and so on) and numbered (1 through 7), while the other 248 colors only have numbers.
As you saw on the Index Color tab of the Select Color dialog box, there are three groupings of colors: a large array of swatches in the top half, and two rows of them below. Moving the cursor over a swatch displays its AutoCAD number below the array, as well as its RGB values. Click a swatch to assign it to the layer that has been selected in the Layer Properties Manager dialog box.
The array of 240 colorsIn the top half of the dialog box are colors numbered 10 through 249, arranged in an array of 24 columns, each having 10 swatches.
The row of 9 standard color swatchesThis group includes colors 1 through 9.The first 7 colors in this group also have names: Red (1),Yellow (2), Green (3), Blue (4), Cyan (5), Magenta (6), and White/Black (7). Colors 8 and 9 have numbers only. Color 7 is named White, but will actually be black if you are using a white background color.
The row of 6 gray shadesThese are colors that are often assigned screening values (such as 50%, 75%, and so on), numbering 250 through 255. As pure color assignments, they range from almost black to almost white.
These 255 colors, plus the background color, make up the traditional AutoCAD 256-color palette. Two additional colors are in a group by themselves, Logical Colors, and are represented by buttons on the Index Color tab.
The two buttons in this grouping—ByLayer and ByBlock—represent two ways that a color can be assigned to objects—such as lines, circles, text, and so on—via the layer they are on or via the block they are part of, rather than to the objects themselves. (Blocks are covered in the next chapter.) When you assign the color cyan to the Walls layer and place all objects representing walls on that layer, all wall objects are automatically assigned the color ByLayer and take on the color of their layer, in this case, cyan.
In more complex drawings, you might need several layers for variations of the same building component, landscape element, or machine part. The Walls layer, for example, might be replaced by several layers, such as Existing Walls to Remain, Walls to Be Demolished, and New Walls. Once you acquire the skills presented here, you will have no difficulty progressing to a more complex layering system.
Looking at the Other Tabs in the Select Color Dialog Box
|
|
AutoCAD also supports a True Color palette and various PANTONE color groups. Although I won’t cover these features in any depth in this book, let’s take a quick look at them before we move on. |
This section applies only to AutoCAD. LT users should skip to the next section, “Assigning Line Types to Layers.”
The True Color TabWith the Layer Properties Manager dialog box open, click one of the color swatches in the Layer List box to open the Select Color dialog box again. Then click the True Color tab. In the upper-right corner, the Color Model drop-down list will display either RGB or HSL. The RGB (for Red, Green, Blue) color model looks like Figure 6.7a, and the HSL (Hue, Saturation, Luminance) model looks like Figure 6.7b.

Figure 6.7: The True Color tab with the RGB color model (a) and the HSL color model (b)
The RGB screen shows three horizontal color bands, one for each of the three primary colors. Move the sliders on each band to set a number from 0 to 255, or type a number in the counter box for each color. The three numbers that make up a color are displayed at the bottom and on the right side, and the rectangles in the lower-right corner show the currently selected and previously selected color.
The HSL screen displays a rectangle of colors and a vertical band with a slider. Click and drag the crosshair around on the rectangle. The color in the front rectangle in the lower-right corner changes as you move the crosshair. Moving it left or right takes the hue through a range of 360 values. Moving it up or down changes the percentage of saturation, or intensity, with the top of the rectangle representing 100%.
The slider to the right of the rectangle controls the luminance, which, like saturation, varies from 0%—representing the color black—to 100%, or white. A luminance of 50% maximizes a color’s brightness.
The Color text box displays the currently selected color’s three RGB numbers. You can also specify a color by entering numbers in the individual boxes for hue, saturation, and luminance—or the boxes for red, green, and blue in the RGB screen. And you can use the Up and Down arrows in these boxes to scroll through the possible settings.
If you select a color using the RGB or HSL screens, it is displayed in the Layer List box of the Layer Properties Manager dialog box by its three RGB numbers.

The Color column might be compressed in such a way that the names of colors in the list may be abbreviated. You can widen the column by clicking and dragging the divider at the right of the title farther to the right.
With the combination of 255 values for each of the three primary colors, you now have more than 16 million colors to choose from in AutoCAD.
The Color Books TabThe Color Books tab displays the colors of the selected color book (see Figure 6.8a). AutoCAD has nine color books, and you can load more. Each book is listed in the Color Book drop-down list at the top of the tab with the current book being displayed in the box. Below that, a set of colors that corresponds to the position of the slider is displayed in bars. Moving the slider to a new position displays another set of colors. Click a displayed color bar to select it, and then click OK. The color is displayed in the Layer Properties Manager Layer List box by its identifying name and number (see Figure 6.8b).
Later in the book, you will be asked to create new layers and assign them colors of your choice. Use this opportunity to explore the True Color and Color Books tabs of the Select Color dialog box, and try using some of these colors in your drawing. Keep the Layer Properties Manager dialog box open. You will use it to assign linetypes in the next section.

Figure 6.8: The Color Books tab in the Select Color dialog box (a), and the Layer List with an assigned PANTONE number (b)
Assigning Linetypes to Layers
When you assign a color to a layer, you can choose any color supported by your system. Not so with linetypes. Each new drawing has only one linetype loaded into it by default (the Continuous linetype). You must load in any other linetypes you need from an outside file.

Figure 6.9: The Select Linetype dialog box

Figure 6.10: The list scrolled to the three Dashed linetypes

Figure 6.11: The Select Linetype dialog box with the Dashed linetype loaded

Figure 6.12: The Layer Properties Manager dialog box with the Roof layer assigned the Dashed linetype
AutoCAD’s Linetypes
In the Available Linetypes list in the Load Or Reload Linetypes dialog box, 45 linetypes are listed. They fall into three groups.
Acad_ISO The first 14 linetypes are in the Acad_ISO family (International Organization for Standardization). They are set up to be used in metric drawings and have lineweight, or pen-width, settings.
Standard AutoCAD Below the ISO linetypes are eight families of three linetypes each, mixed with seven special linetypes that contain graphic symbols. Each family has one basic linetype and two that are multiples of it: one has dashes twice the size (called, for example, Dashed2), and one has dashes half the size (called Dashed2). (See Figure 6.10, shown earlier.) Having an assortment of different sizes of one style of linetype is helpful for distinguishing between building components, such as foundation walls and beams, which, in addition to roof lines, may also need dashed lines.
Complex Mixed in with the Standard linetypes are seven linetypes that contain symbols, letters, or words. These are used to indicate specific elements in the drawing, such as fences, hot-water lines, railroad tracks, and others.
It is not difficult to create your own custom linetypes. You can do so in two ways.
Using Notepad Start the Notepad program and navigate to the Support folder for AutoCAD 2004, usually found at this location: C:Documents & Settingsyour nameApplication DataAutodesk AutoCAD 2005 [or AutoCAD LT 2005]R16.0enusupport. Open the file named acad whose type is listed as “AutoCAD Linetype Definition.” Its full name is acad.lin. It contains the definition codes for all the linetypes, and they are easy to figure out. Copy an existing pattern and create your own.
Using the Linetype Command Type -linetype, and then type c for the Create option. You will be guided through the steps to create your own .lin file or add to an existing file. To use the Linetype command, you need to know the definition codes. Use Notepad until you get a feel for the codes.
A Word about Lineweight
In the Layer Properties Manager dialog box is a column for the Lineweight property. When you first create a layer, it is assigned the default lineweight. Just as you assigned a color and a linetype for each new layer in the cabin drawing, you can also assign a lineweight. Once assigned, lineweights can be displayed so you can see how your drawing will look when printed. In Chapter 14 you will learn more about lineweights, about how to assign them to layers, and about how to view your drawing as it will look when printed or in WYSIWYG mode.
The Current Layer as a Drawing Tool
Now is a good time to look at what it means for a layer to be current. Notice the green check mark icon above the Layer List box in the Layer Properties Manager dialog box. The name of the current layer, in this case, 0, is displayed just above the Layer List box next to the green check mark.
At any time, one, and only one, layer is set as the current layer. When a layer is current, all objects you draw will be on that layer and will take on the properties assigned to it. Because the 0 layer is current—and has been current so far in this book—all objects that you have drawn so far are on the 0 layer and have the linetype and color that are specified by default for the 0 layer: Continuous and White (or Black), respectively. If you make the Walls layer current, any new lines you draw will be Cyan and Continuous. If the Roof layer is current, any new lines will be Blue and Dashed.

You need to move the objects in the drawing onto their proper layers. To do this, you’ll use the Layer Control drop-down list on the Object Properties toolbar to assign each object to one of the new layers.
When assigning existing objects in the drawing to new layers, our strategy will be to begin by selecting all the objects that belong on the same layer and that are easiest to select. We’ll reassign them to their new layer, using the Layer Control drop-down list. We’ll then move to a set of objects that belong on a different layer and are slightly more difficult to select, and so on.
Notice also that in the Layer Control drop-down list, the layer being displayed now is the 0 layer rather than Walls, the current layer. When objects are selected with no command running, the Layer Control drop-down list displays the layer to which the selected objects are currently assigned. If selected objects are on more than one layer, the Layer Control drop-down list goes blank.

Figure 6.13: The balcony arcs, selected and displaying their grips

Figure 6.14: The opened Layer Control drop-down list
This is the process you need to go through for each layer so that the new layers can receive objects that are currently on the 0 layer. In the next section, we’ll move the threshold and steps to the Steps layer. You will select the threshold and steps by using a selection window.
Selecting Objects with Windows
AutoCAD provides many tools for selecting objects in your drawing. Two of the most powerful are the crossing and regular selection windows. You determine the size and location of these selection windows by picking points on your drawing to be opposite corners of a rectangle that will serve as the window. The regular window selects any objects completely enclosed by the window. The crossing window selects objects that are completely enclosed by or cross through an edge of the window. The crossing window is represented by dashed lines, and the regular window is represented by solid lines.
By default, AutoCAD is set up so that whenever no command is running and the prompt in the Command window is Command:, you can pick objects one at a time or start a regular or a crossing window. If you pick an object, it is selected, and its grips are displayed. If you select a blank area of the drawing, a selection window is started. If you then move the cursor to the right of the point just picked, a regular window is started. If you move the cursor to the left, a crossing window is started. You’ll use a crossing window to select the sliding glass door threshold, and you’ll use two regular windows to select the front and back steps and those thresholds.

Figure 6.15: Starting the crossing selection window (a), and completing it (b)

Figure 6.16: The two regular selection windows used to select the front and back steps and thresholds
Grips have uses other than signaling that an object has been selected. You’ll learn about some of these as we progress through the chapters.
Selecting the Doors and Swings
To select the doors and swings, you can use crossing windows. Let’s examine this task closely to learn more valuable skills about how to select objects.

Figure 6.17: Using a crossing window to select the doors and swings: the back door (a), the bathroom door (b), and the bedroom and front doors (c)
For the sliding glass door, it is awkward to create a crossing window from left to right because it may be difficult to position the pickbox between the threshold lines and the sliding door. In this situation, use a regular window to select the objects.

Figure 6.18: Using a regular selection window to select the sliding glass door
The next task is to move the kitchen and bathroom counters and fixtures onto the Fixtures layer. In doing this, you’ll learn how to deselect some objects from a group of selected objects.
Selecting the Kitchen and Bathroom Fixtures
Sometimes it is more efficient to select more objects than you want and then deselect those you don’t want. You’ll see how this is done when you select the kitchen and bathroom fixtures.

Figure 6.19: A crossing window to select the kitchen objects (a), another crossing window to select the bathroom objects (b), and the completed selection set after removing the door swing and back wall line (c)
The last objects to move onto a new layer are the wall lines. As the drawing is now, it will not be easy to select the wall lines because so many other objects in the drawing are in the way. However, these other objects are now on their own layers, while the wall lines are still on the 0 layer. If you make all your layers temporarily invisible except for the 0 and Walls layers, selecting the wall lines will be easy.
Selecting Objects in Your Drawing
As you select objects in the cabin drawing to move them onto their prescribed layers, you use various selection tools. These tools are important, and mastering them will greatly enhance your performance as an AutoCAD user. As you select objects by picking them and windowing them, you are building a selection set. You might later want to remove objects from that selection set. Here is a summary of the basic selection tools that you have used so far, with a couple of additions.
PickingThis is the basic, bottom-line selection tool. Click the line, circle, or other object to select it. If no command is running, grips appear on the selected object, and the object ghosts. If a command is running and you are being prompted to Select objects:, grips do not appear, but the object is selected and ghosts.
Selecting a Window AutomaticallyTo start a window, click a location that is in an empty portion of the screen, where there are no objects. To form a regular window, move your cursor to the right. To form a crossing window, move your cursor to the left. This feature is called implied windowing, and it works this way if no command is running or if one is running and the prompt line says Select objects:.
If the geometry of your drawing makes forming a crossing or regular selection window difficult because of the need to move from right to left (crossing) or from left to right (regular), you can force one or the other by typing c or w, respectively, but only if a command is running.
Removing Objects from a Selection SetAt some point, you will find it more efficient to select more objects than you want and then remove the unwanted ones. You can do this in two ways:
If you need to add objects back to the selection set after removing some, type a. This will put you back into selection mode, and you can continue adding objects to the set.
You can make layers invisible either by turning them off or by freezing them. When a layer is turned off or frozen, the objects on that layer are invisible. These two procedures operate the same way and do about the same thing. The difference between freezing and turning a layer off is technical and beyond the scope of this book. However, here is a good rule to follow: if you want a layer to be invisible for only a short time, turn it off; if you prefer that it be invisible semipermanently, freeze it. For the task at hand, we will turn off all the layers except the 0 layer and the Walls layer. We will then move the wall lines onto the Walls layer.
Layers beginning with numbers are listed first, in numeric order. Following those are the rest of the layers listed alphabetically.
| Note |
Because the Walls is current and has a green check mark in the Status column, you can’t tell if it has any objects on it. You have to make another layer current, and then check whether the Walls icon is blue or gray. |

Figure 6.20: The layers, now listed alphabetically (a), and newly turned-off layers (b)

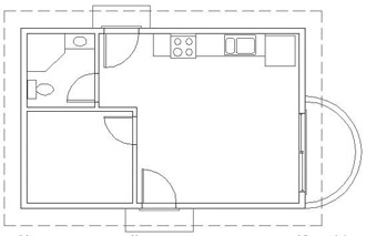
Figure 6.21: The floor plan with all layers frozen except the Walls layer and the 0 layer

Figure 6.22: The floor plan with all layers visible and all objects on their correct layers
Two of your layers, Roof and Headers, still have no objects on them because these components haven’t been drawn yet. We’ll draw the headers now.
Most door and window openings do not extend to the ceiling. The portion of the wall above the opening and below the ceiling is the header. The term comes from the name of the beam inside the wall that spans the opening. In a floor plan, wall lines usually stop at the door and window openings, but you need lines across the gap between jamb lines to show that an opening does not extend to the ceiling; hence, the header.
To draw headers, you need to make the Headers layer current. As you’ve seen, you can use the Layer Properties Manager dialog box. But there is a shortcut, the Layer Control drop-down list, which you have just been using to move objects from one layer to another.
You need to draw two parallel lines across each of the five openings, from the endpoint of one jamb line to the corresponding endpoint of the jamb on the opposite side of the opening.


When you’re finished, use the Layer drop-down list to turn on the Doors and Steps layers. The floor plan will look like Figure 6.23b.

Figure 6.23: The header lines drawn for the back door opening (a), and for the rest of the doorway openings (b)
| Note |
Shortcut menus—also called context menus and right-click menus—contain frequently used tools. The specific tools on a menu depend on what you’re doing when you right-click. It was not terribly efficient to use them to draw the header lines, but it was a good way to introduce them to you. It’s also a way to draw without using the keyboard. |
The Layer drop-down list box is a shortcut that allows you to quickly pick a different layer as the current layer and to turn off or turn on individual layers. To create new layers or to turn off many layers at a time, use the Layer Properties Manager dialog box. (Click the Layer Properties Manager button on the Object Properties toolbar.) You’ll learn about another tool for changing the current layer as you draw the roof lines.
Before starting to draw the roof lines, refer to Figure 6.24 and note the lines representing different parts of the roof:

Figure 6.24: The floor plan with the roof lines
The roof for the cabin is called a hip roof because the end panels slope down to the eaves just as the middle panels do. The intersections of the sloping roof planes form the hip lines. We’ll start with the eaves.
Creating the Eaves
Because the roof is cantilevered out beyond the exterior walls the same distance on all sides of the building, we can generate the eaves lines by offsetting the outside wall lines.

Figure 6.25: One outside wall line is offset to each side of the building.

Figure 6.26: Picking lines to fillet one of the eaves’ corners (a), and the result (b)

Figure 6.27: The eaves lines after filleting
Because the eaves lines were offset from wall lines, they are on the Walls layer. You need to move them onto the Roof layer. You’ll then make the Roof layer current so that when you draw the hip lines and the ridgeline, they will be on the Roof layer.
The eaves lines are still solid lines, even though the Roof layer has been assigned a Dashed linetype. Actually, the lines are dashed, but the dashes are so small that the monitor can’t display them.
Setting a Linetype Scale Factor
By default, the dashes are set up to be 1⁄2" long with 1⁄4" spaces. This is the correct size for a drawing that is close to actual size on your screen, like the box you drew in Chapter 2. But for something that is the size of your cabin, you must increase the linetype scale to make the dashes large enough to see. If the dashes were 12" long with 6" spaces, they would at least be visible, though possibly not exactly the right size. To make such a change in the dash size, ask what you must multiply 1⁄2" by to get 12". The answer is 24—so that’s your scale factor. AutoCAD stores a Linetype Scale Factor setting that controls the size of the dashes and spaces of noncontinuous linetypes. The default is 1.00, which gives you the 1⁄2" dash, so you need to change it to 24.00.
If you are not satisfied with the dash size, restart the Ltscale command and increase the scale factor for a longer dash or decrease it for a shorter one. This linetype scale factor is a global one, meaning that it affects every noncontinuous line in the drawing. There is also an individual scale factor for linetypes. You’ll see that in the next section.

Figure 6.28: The eaves lines on the Roof layer with visible dashes
Although the Ltscale command sets a linetype scale factor for all noncontinuous lines in the drawing, you can adjust the dash and space sizes for individual lines. If you want to change the dash and space size for one of the eaves lines of the roof to make them larger, follow these steps:
| Note |
If no objects are selected, and you set Linetype Scale in the Properties palette to a number other than 1.000, any noncontinuous lines that are subsequently drawn will be controlled by this new Linetype Scale. |
This tool allows you to get subtle variations in the size of dashes and spaces for individual, noncontinuous lines. But remember that all lines are controlled by an individual linetype scale factor and by the global linetype scale factor. The actual size of the dashes and spaces for a particular line is a result of the two linetype scale factors working together. This additional flexibility requires you to keep careful track of the variations you are making.
To find out the current values for the individual (called object) and global linetype scale factors, follow these steps:

Drawing the Hip and Ridge Lines
Next, you’ll draw two of the diagonal hip roof lines and then use the Mirror command to create the other two. To do this, you need to assign the Roof layer as the current layer. Because you have moved the lines you just offset to the Roof layer, you can use the Make Object’s Layer Current button to make the Roof layer current.
Look at the Linetype Control drop-down list on the Properties toolbar. A dashed line with the name ByLayer appears there. ByLayer tells you that the current linetype is going to be whatever linetype has been assigned to the current layer. In the case of the Roof layer, the assigned linetype is dashed. You will read more about ByLayer at the end of this chapter.


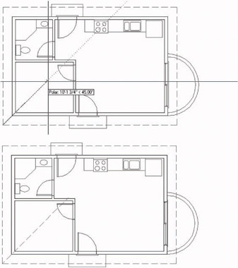
Figure 6.29: The Polar Tracking tab in the Drafting Settings dialog box

Figure 6.30: The 45 tracking path for the first hip line of the roof (a), and the completed first hip line (b)
Use the same procedure to draw another hip line from the upper-left corner of the roof. Here’s a summary of the steps:
The two hip lines need to be filleted together at their intersection, but the bedroom door is in the way.

Figure 6.31: The first two hip lines are filleted together (a) and then mirrored to the right (b).

Figure 6.32: The completed roof
By drawing the roof lines, you have completed the exercises for this chapter. The cabin floor plan is almost complete. In the next chapter, you will complete the floor plan by placing windows in the external walls using a new grouping tool called the block. The rest of this chapter contains a short discussion on color, linetypes, and lineweights and how they work with layers and objects.
Here are a few concepts to consider when assigning properties to layers and objects.
Selecting Colors for Layers and Objects
First, you must decide whether you prefer a light or dark background color for the drawing area. This is generally a personal preference, but the lighting in your work area can be a contributing factor. Bright work areas usually make it difficult to read monitors easily, and with a dark background color on your screen in a brightly lit room, you will often get distracting reflections on the screen. Eyestrain can result. Darkening your work area will usually minimize these effects. If that’s not possible, you might have to live with a lighter background.
Next, look at the colors in your drawing. If the background of your drawing area is white, notice which colors are the easiest to read. For most monitors, yellow, light gray, and cyan are somewhat faded, while blue, green, red, and magenta are read easily. If your drawing area background is black, the blue is sometimes too dark to read easily, but the rest of the colors that we have used so far usually read well. This is one reason that most users prefer the black or at least a dark background color.
Assigning a Color or a Linetype to an Object Instead of a Layer
You can also assign properties of layers, such as color, linetype, and lineweights, to objects. So, for example, think about the Roof layer. It is assigned the Dashed linetype. A line on the Roof layer can be assigned the Continuous linetype, even though all other lines on the Roof layer are dashed. The same is true for color and lineweights. Occasionally, this makes sense, especially for linetypes, but that is the exception, rather than the rule. To make such a change, select the line, open the Properties palette, and change the linetype from ByLayer to the linetype of your choice.
In this chapter, you have seen how to assign colors and linetypes to layers, in order to control the way objects on those layers appear. That is the rule to follow.
When objects are assigned properties that vary from those of their layer, the result can be confusing to someone working with your drawing file because the objects don’t appear to be on their assigned layer. If the object’s properties match those of another layer, you can mistakenly think the object is on that layer.
Making a Color or a Linetype Current
If you look at the Properties toolbar for a moment, you will see, to the right of the Layer Control drop-down list, more such lists. The first three are the Color, the Linetype, and the Lineweight controls. You use these tools to set a color, linetype, or lineweight to be current. When this is done, each object subsequently created will be assigned the current linetype, lineweight, and/or color, regardless of which linetype, lineweight, and color have been assigned to the current layer. If, for example, the Doors layer is set as the current layer, and the Dashed linetype and green color are also assigned as current, any lines drawn are dashed and green, but still on the Doors layer. This is not a good way to set up the system of layers, linetypes, and colors because of the obvious confusion it would create in your drawing, but beginners often accidentally do this.
The best way to keep all this straight is to keep the current linetype, lineweight, and color set to ByLayer, as they are by default. When you do this, colors and linetypes are controlled by the layers, and objects take on the color and linetype of the layers they are on. If this configuration is accidentally disturbed and objects are created with the wrong color or linetype, you can correct the situation without too much trouble. First, reset the current color, lineweight, and linetype to ByLayer by using the Property Control drop-down list on the Properties toolbar. Then click the Properties button to change the linetype, lineweight, or color of the problem objects to ByLayer. They will then take on the color, lineweight, and linetype of the layer to which they have been assigned.
All trades and professions that use AutoCAD will have their own standards for naming and organizing layers. The following suggestions urge you to apply this chapter’s concepts to your individual use of the program.
Choose Save As to save Cabin06b to a new file called Cabin06b_Linetype. Then experiment with the linetypes and linetype scales (Global and Object) to get a feel for how the linetypes look and how the scales work. You won’t be using this practice file again, so feel free to draw new objects that will make it convenient for you to work with linetypes. Here are some suggestions for linetypes to experiment with:
Here is a summary of the steps to get a new linetype into your drawing:
Once you have a few linetypes represented in the drawing, open the Linetype Manager dialog box and experiment with the global and object linetype scale factors.
Open a new drawing and set up approximately ten layers that you might use in your own profession. Assign them colors and linetypes. Most activities that use CAD have some layers in common, such as Centerline, Border or Titleblock, Drawing Symbols, Dimensions, Text or Lettering, and so on.
Introduction