Assuming that you have worked your way through the first three chapters, you have now successfully drawn a box (Chapter 2) as well as the outer wall lines of the cabin (Chapter 3). From here on, you will develop a floor plan for the cabin and in Chapter 8, elevations (views of the front, back, and sides of the building that show how the building will look if you’re facing it). The focus in this chapter is on gaining a feel for the strategy of drawing in AutoCAD and on how to solve drawing problems that come up in the course of laying out the floor plan. As you work your way through this chapter, your activities will include making the walls, cutting doorway openings, and drawing the doors (see Figure 4.1). In Chapter 5, you will add steps and a balcony and place fixtures and appliances in the bathroom and kitchen.

Figure 4.1: The basic floor plan of the cabin
Each exercise in this chapter presents opportunities to practice using commands you already know from previous chapters and to learn a few new ones. The most important goal is to begin to use strategic thinking as you develop methods for creating new elements of the floor plan.
For most floor plans, the walls come first. The first lesson in this chapter is to understand that you will not be putting many new lines in the drawing, at least not as many as you might expect. You will create most new objects in this chapter from items already in your drawing. In fact, you will draw no new lines to make walls. You’ll generate all new walls from the four exterior wall lines you drew in the last chapter.
You will need to create an inside wall line for the exterior walls (because the wall has thickness) and then make the three new interior walls (see Figure 4.2). The thickness will be 4" for interior walls and 6" for exterior walls, because exterior walls have an additional layer or two of weather protection, such as shingles or stucco. Finally, you will need to cut five openings in these walls (interior and exterior) for the doorways.
All the commands used for this exercise were presented in Chapters 2 and 3. If you need a refresher, glance back at these chapters.

Figure 4.2: The wall dimensions
The first step is to offset the existing four wall lines to the inside to make the inside wall lines for the exterior walls. You will then need to fillet them to clean up their corners, just like you did for the box in Chapter 2.
This procedure is identical to the one you performed in Chapter 2 on the box.
| Tip |
Buildings are usually—but not always—dimensioned to the outside edge of exterior walls and to the center line of interior walls. Wood-frame buildings are dimensioned to the outside edges of their frames and to the center lines of the interior walls. |
If you are starting AutoCAD and if you have chosen Do Not Show A Startup Dialog on the System tab of the Options dialog box, follow the instructions at the beginning of step 1.
Then click Open. If you are starting AutoCAD, and if you have chosen Show Startup Dialog Box on the System tab of the Options dialog box, the Startup dialog box opens. Be sure the Open A Drawing button is selected, and then look for the Cabin03 drawing in the Select A File list box. This box keeps a list of the most recently opened .dwg files.
Highlight your .dwg file and click OK. If you don’t find your file in the list, click the Browse button to open the Select File dialog box. Find and open your training folder, select your drawing file, and click Open. The drawing should consist of four lines making a rectangle (see Figure 4.3).

Figure 4.3: The cabin as you left it in Chapter 3
| Note |
You do not have to enter the inch sign ("), but you are required to enter the foot sign ('). |

Figure 4.4: The first line is offset.

Figure 4.5: All four lines are now offset 6" to the inside.

Figure 4.6: The first corner is filleted.
You can restart the most recently used command by pressing the spacebar or at the Command: prompt or by right-clicking and choosing the first item on the shortcut menu that opens.

Figure 4.7: The four inside corners have been cleaned up.
Characteristics That Offset and Fillet Have in Common
Characteristics That Are Different in Offset and Fillet
You will find several uses for Offset and Fillet in the subsequent sections of this chapter and throughout the book.
Create the interior wall lines by offsetting the exterior wall lines.
AutoCAD requires that you enter a distance containing feet and inches in a particular format: no space between the foot sign (') and the inches, and a hyphen (-) between the inches and the fraction. For example, if you are entering a distance of 6'-43⁄4", you type 6'4-3⁄4. The measurement is displayed in the normal way, 6'-43⁄4", but you must enter it in the format that has no spaces.

Figure 4.8: Selecting the wall line to offset
| Tip |
In the Offset command, your opportunity to change the offset distance comes right after you start the command. So if the Offset command is already running, and you need to change the offset distance, you need to stop and then restart the command. To do so, press or the spacebar twice. |

Figure 4.9: The first interior wall
| Note |
With Architectural units set, you can still enter distances in decimal form for feet and inches, and AutoCAD will translate them into their appropriate form. For example, you can enter 6'-6" as 6.5', and you can enter 1⁄2" as 4.5 without the inch sign. Remember, when entering figures, you can leave off the inch sign ("), but you must enter the foot sign ('). |

Figure 4.10: Selecting another wall line to offset
These interior wall lines form the bedroom and one side of the bathroom. You need to clean up their intersections with each other and with the exterior walls. If you take the time to do this now, it will be easier to make the last interior wall and thereby complete the bathroom. Refer to Figures 4.1 and 4.2 earlier in this chapter to see where we’re headed.
Cleaning Up Wall Lines
Earlier, you used the Fillet command to clean up the inside corners of the exterior walls. You can use that command again to clean up some of the interior walls, but you will have to use the Trim command to do the rest of them. You’ll see why as you progress through the next set of steps.

Figure 4.11: Selecting the first two lines to fillet (a), and the result of the fillet (b)
The best rule for choosing between Fillet and Trim is the following: If you need to clean up a single intersection between two lines, use the Fillet command. For other cases, use the Trim command.

Figure 4.12: Selecting the second two lines to fillet (a), and the result of the second fillet (b)
The two new interior walls are now the right length, but you will have to clean up the areas where they form T intersections with the exterior walls. The Fillet command won’t work in T intersections because too much of one of the wall lines gets trimmed away. You’ll have to use the Trim command in T-intersection cases. The Fillet command does a specific kind of trim and is easy and quick to execute, but its uses are limited (for the most part) to single intersections between two lines.
Using the Zoom Command
To do this trim, you need a closer view of the T intersections. Use the Zoom command to get a better look.

Figure 4.13: Positioning the cursor for the first click of the Zoom command
When you start the Zoom command by typing z and then picking a point on the screen, a zoom window begins.

Figure 4.14: Using the zoom window option: positioning the rectangle (a), and the new view after the Zoom command (b)
The rectangle you’ve just created is called a zoom window. The part of the drawing enclosed by the zoom window becomes the view on the screen. This is one of several zoom options for changing the magnification of the view. Other zoom options are introduced later in this chapter and throughout the book.
In the Trim command, click the part of the line that needs to be trimmed away when picking lines to be trimmed. In the Fillet command, select the part of the line that you want to keep.

Figure 4.15: Selecting a line to be trimmed (a), and the result of the Trim command (b)

Figure 4.16: The result of the Zoom Previous command
Repeat this procedure to trim the lower T intersection. Follow these steps:
Figure 4.17 shows the results.

Figure 4.17: The second trim is completed.
You need to create one more interior wall to complete the bathroom.
Finishing the Interior Walls
You will use the same method to create the last bathroom wall that you used to make the first two interior walls. Briefly, this is how it’s done:
| Tip |
Make a zoom window just large enough to enclose the bathroom. The resulting view should be large enough to allow you to trim both ends of the interior wall without re-zooming. |
The results should look like Figure 4.18.

Figure 4.18: The completed interior walls
You used Offset, Fillet, Trim, and a couple of zooms to create the interior walls. The next task is to create five doorway openings in these walls. If you need to end the drawing session before completing the chapter, choose File Save As, and then change the name of this drawing to Cabin04a.dwg and click Save. You can then exit AutoCAD. To continue, do the same save and move on to the next section.
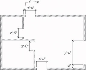
Of the five doorway openings needed, two are on interior and three are on exterior walls (see Figure 4.19). Four of them will be for swinging doors, and one will be for a sliding glass door. We won’t be doing the hatchings and dimensions shown in the figure—those features will be covered in future chapters.

Figure 4.19: The drawing with doorway openings
The procedure used to make each doorway opening is the same one that you used to create the opening for the box in Chapter 2. First, you establish the location of the jambs, or sides, of an opening. One jamb for each swinging door opening will be located 6" from an inside wall corner. This allows the door to be positioned next to a wall and out of the way when swung open. When the jambs are established, you will trim away the wall lines between the edges. The commands used in this exercise are Offset, Extend, and Trim. You’ll make openings for the 3'-0" exterior doorways first.
The Exterior Openings
These openings are on the front and back walls of the cabin and have one side set in 6" from an inside corner.

Figure 4.20: The lines to offset for 3'-0" openings

Figure 4.21: The offset lines for 3'-0" openings
| Tip |
If you start a new command by entering letters on the keyboard, you must first be sure that the previous command has ended. On the other hand, if you start a new command by clicking its icon on a toolbar or by choosing it from the menu bar, it doesn’t matter if the previous command is still running. AutoCAD will just cancel it.
|

Figure 4.22: The lines after being extended through the external walls
| Tip |
You must pick the lines to be extended on the half of them nearest the boundary’s edge; if you do not, they will extend to the opposite boundary edge. |
To complete the openings, we will continue with steps 6 and 7. First, we’ll trim away the excess part of the jamb lines, and then we’ll trim away the wall lines between the jamb lines. You’ll use the Trim command the same way you used it in Chapter 2, but this time you’ll do a compound trim to clean up the wall and jamb lines in one cycle of the command.

Figure 4.23: Selecting the cutting edges

Figure 4.24: The lines to be trimmed

Figure 4.25: The finished 3'-0" openings
| Tip |
When picking lines to be trimmed, remember to pick the lines on the portion to be trimmed away. |
You can construct the two interior openings using the same procedure.
The Interior Openings
These doorways are 2'-6" wide and also have one jamb set in 6" from the nearest inside corner. Figure 4.26 shows the three stages of fabricating these openings. Refer to the previous section on making openings for step-by-step instructions.

Figure 4.26: Creating the interior openings: the offset lines that locate the jamb lines (a), the extended lines that form the jamb lines (b), and the completed openings after trimming (c)
Construct the 7'-0" exterior opening using the same commands and technique.
The 7'-0" Opening
Notice that in Figure 4.19, earlier in this chapter, the opening on the right side of the building has one jamb set in 12" from the inside corner. This opening will be for the sliding glass door.
You’ve done this procedure before, so here’s a summary of the steps:
This completes the openings. The results should look like Figure 4.27.

Figure 4.27: The completed doorway openings
As you gain more control over the commands you used here, you will be able to anticipate how much of a task can be done for each use of a command. Each opening required offsetting, extending, and trimming. You constructed these openings by drawing two at a time except for the last one, thereby using each of the three commands three times. It is possible to do all the openings using each command only once. In this way, you do all the offsetting, then all the extending, and finally all the trimming. In cutting these openings, however, the arrangement of the offset lines determined how many cycles of the Trim command were most efficient to use. If lines being trimmed and used as cutting edges cross each other, the trimming gets complicated. For these five openings, the most efficient procedure is to use each command twice. In Chapter 8, you’ll get a chance to work with more complex multiple trims when you draw the elevations.
Now that the openings are complete, you can place doors and door swings in their appropriate doorways. In doing this, you’ll be introduced to two new objects and a few new commands, and you’ll have an opportunity to use the Offset and Trim commands in new, strategic ways.
What to Do When You Make a Mistake
When you are offsetting, trimming, and extending lines, it’s easy to pick the wrong line. Here are some tips on how to correct these errors and get back on track:
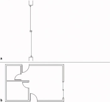
In a floor plan, a rectangle or a line for the door and an arc showing the path of the door swing usually indicates a swinging door. The door’s position varies, but it’s most often shown at 90 from the closed position (see Figure 4.28). The best rule I have come across is to display them in such a way that others working with your floor plan will be able to see how far, and in what direction, the door will swing open.

Figure 4.28: Possible ways to illustrate doors
The cabin has five openings. Four of them need swinging doors, which open 90. The fifth is a sliding glass door. Drawing it will require a different approach.
The swinging doors are of two widths: 3' for exterior and 2'-6" for interior (refer to Figure 4.1 earlier in this chapter). In general, doorway openings leading to the outside are wider than interior doors, with bathroom and closet doors usually being the narrowest. For the cabin, we’ll use two sizes of swinging doors. You will draw one door of each size and then copy these to the other openings as required. Start with the front door at the bottom of the floor plan. To get a closer view of the front door opening, use the Zoom Window command.

LT does not have the Extension and the Parallel Osnap modes, and it also does not have Object Snap Tracking.

Figure 4.29: Forming a zoom window at the front door opening (a), and the result (b)
You can also start the Rectangle command by choosing Draw Rectangle or by typing rec in the Command window.
Notice the Command window prompt. Several options are in brackets, but the option Specify first corner point (before the brackets) is the default and is the one you want. You form the rectangle in the same way that you form the zoom window—by picking two points to represent opposite corners of the rectangle. In its closed position, the door will fit exactly between the jambs, with its upper corners coinciding with the upper endpoints of the jambs. To make the first corner of the rectangle coincide with the upper endpoint of the left jamb exactly, you will use an Object Snap to assist you. Object Snaps (or Osnaps) allow you to pick specific points on objects such as endpoints, midpoints, the center of a circle, and so on.
Osnap is short for Object Snap. The two terms are used interchangeably.

Because of the way AutoCAD displays the crosshair cursor, both the lines and the crosshair disappear when its lines coincide with lines in the drawing. This makes it difficult to see the rectangle being formed.

Figure 4.30: The rectangle after picking the first corner (a), and the completed door in a closed position (b)
| Note |
You could have used the Rectangle command to lay out the first four wall lines of the cabin in Chapter 3. Then you could have offset all four lines in one step to complete the exterior walls, and the corners would have been automatically filleted. It would have been faster than the method we used, but a rectangle’s lines are all one object. In order to offset them to make the interior walls, they would have to be separated into individual lines using the Explode command. |
Rotating the Door
This rotation will be through an arc of 90 in the counterclockwise direction, making it a rotation of +90. By default, counterclockwise rotations are positive, and clockwise rotations are negative. You’ll use the Rotate command to rotate the door.
| Note |
When you select the door, one pick selects all four lines. Rectangles are made of a special line called a polyline that connects all segments into one object. You will learn more about them in Chapter 10. |
You will be prompted for a base point—a point around which the door will be rotated. To keep the door placed correctly, pick the hinge point for the base point. The hinge point for this opening is the upper endpoint of the left jamb line.
You can also start the Rotate command by choosing Modify Rotate on the drop-down menu or by typing ro.

Figure 4.31: The door rotating with movement of the cursor (a), and the door after the 90 rotation (b)
To finish this door, you need to add the door’s swing. You’ll use the Arc command for this.
Drawing the Door Swing
The swing shows the path that the outer edge of a door takes when it swings from closed to fully open. Including a swing with the door in a floor plan helps to resolve clearance issues. You draw the swings using the Arc command, in this case using the Endpoint Osnap. This command has many options, most of which are based on knowing three aspects of the arc, as you will see.

You can start abbreviated versions of the Arc command from the Draw toolbar or by typing a.

The prompt changes to read: Specify second point of arc or [Center/End]: _c Specify center point of arc.
This may be confusing at first. The prompt gives you three options: Second Point, Center, and End. (Center and End are in brackets.) Because you previously chose the Start, Center, Angle option, AutoCAD automatically chooses Center for you. That is the last part of the prompt.

Figure 4.32: Drawing the arc: the ending point of the arc follows the cursor’s movements (a), and the completed arc (b)
The Options of the Arc Command
The position and size of an arc can be specified by a combination of its components, some of which are starting point, ending point, angle, center point, and radius. The Arc command gives you 11 options, 10 of which use 3 components. With a little study of the geometric information available to you on the drawing, you can choose the option that best fits the situation.
Choosing Draw Arc on the drop-down menu displays 10 options with their 3 components, and an 11th option is used to continue the last arc drawn. For that reason, this is the best way to start the Arc command when you are first learning it.
When you start the Arc command by clicking the Arc button on the Draw toolbar or by typing a, you get an abbreviated form of the command in the Command window. You can access all 11 options of the command through this prompt, but you have to select the various components along the way.
The front door is completed. Because the back door is the same size, you can save time by copying this door to the other opening. You’ll see how to do that next.
The Copy command makes a copy of the objects you select. You can locate this copy either by picking a point or by entering relative coordinates from the keyboard. For AutoCAD to position these copied objects, you must designate two points: a base point, which serves as a point of reference for where the copy move starts; and then a second point, which serves as the ending point for the Copy command. The copy is moved the same distance and direction from its original that the second point is moved from the first point. When you know the actual distance and direction to move the copy, the base point isn’t critical because you will specify the second point with relative polar or Cartesian coordinates. But in this situation, you don’t know the exact distance or angle to move a copy of the front door to the back door opening, so you need to choose a base point for the copy carefully.
In copying this new door and its swing to the back door opening of the cabin, you need to find a point somewhere on the existing door or swing that can be located precisely on a point at the back door opening. There are two points like this to choose from: the hinge point and the start point of the door swing. Let’s use the hinge point. You usually know where the hinge point of the new door belongs, so this is easier to locate than the start point of the arc.
You can also start the Copy command by choosing Modify Copy on the drop-down menu or by typing cp.
Activate the Endpoint Osnap and pick the hinge point. A copy of the door and swing is attached to the crosshair cursor at the hinge point (see Figure 4.33). The prompt changes to Specify second point of displacement or <use first point of displacement>:. You need to pick where the hinge point of the copied door will be located at the back door opening. To do this, you need to change the view back to what it was before you zoomed into the doorway opening.

Figure 4.33: The copy of the door and swing attached to the crosshair cursor
The Copy command ends when you pick or specify the second point of the move, unless you’re copying the same object to multiple places. You’ll do that in Chapter 5 when you draw the stove top.

Figure 4.34: The door is copied to the back door opening.
The door is oriented the wrong way, but you’ll fix that next.
When you copy doors from one opening to another, often the orientation doesn’t match. The best strategy is to use the hinge point as a point of reference and place it where it needs to go, as you have just done. Then flip and/or rotate the door so that it sits and swings the right way. The flipping of an object is known as mirroring.
You were able to use the Zoom command while you were in the middle of using the Copy command. You can use most of the display commands (Zoom, Pan, and so on) in this way. This is called using a command transparently.
You have located the door in the opening, but it needs to be flipped so that it swings to the inside of the cabin. To do this, we’ll use the Mirror command.
The Mirror command allows you to flip objects around an axis called the mirror line. You define this imaginary line by designating two points on the line. Strategic selection of the mirror line ensures the accuracy of the mirroring action, so it’s critical to visualize where the proper line lies. Sometimes you will have to draw a guideline in order to designate one or both of the endpoints.
You can also start the Mirror command by choosing Modify Mirror on the drop-down menu or by typing mi.

Figure 4.35: The mirror image moves as the mirror line rotates.

Figure 4.36: The mirrored door and swing
It may take some practice to become proficient at visualizing and designating the mirror line, but once you are used to it, you will have learned a very powerful tool. Because many objects—including building layouts, widgets, steel beams, road cross sections, and so on—have some symmetry to them, wise use of the Mirror command can save you a lot of drawing time.
You have two more swinging doors to place in the floor plan.
You can’t copy the existing doors and swings to the interior openings because the sizes don’t conform, but you can use the same procedure to draw one door and swing and then copy it to the other opening.
| Note |
We could have used the Stretch command to lengthen the door, but that’s an advanced Modify command and won’t be introduced until Chapter 9. Besides, the arc would have to be modified to a larger radius. It’s easier to just draw another door and swing to a different size. |

Figure 4.37: A zoom window in the interior door opening area (a), and the results of the zoom (b)
The Start, Center, Angle options, as well as a few others, of the Arc command require that you choose the start point for the arc in such a way that the arc is drawn in a counterclockwise direction. If you progress in a clockwise direction, use a negative number for the angle.

Figure 4.38: The four swinging doors in place
The last door to draw is the sliding glass door. This kind of door requires an entirely different strategy, but you’ll use commands familiar to you by now.
| Note |
The buttons you have been clicking in this chapter are also referred to as icons and tools. When they are in dialog boxes or on the status bar, they actually look like buttons to push that have icons on them. When they are on the toolbars, they look like icons, that is, little pictures. But when you move the Pointer Arrow cursor onto one, it takes on the appearance of a button with an icon on it. All three terms—button, icon, and tool—will be used interchangeably in this book. |
Sliding glass doors are usually drawn to show their glass panels within the door frames.

To draw the sliding door, you will apply the Line, Offset, and Trim commands to the 7' opening you made earlier. It’s a complicated exercise but it will teach you a lot about the power of using these three commands in combination.

Figure 4.39: The view when zoomed in as closely as possible to the 7' opening

Figure 4.40: The Object Snap toolbar docked to the right of the drawing area

Figure 4.41: Jamb lines offset 2" into the doorway opening
A line offset from itself, that is, a copy of the selected line, is automatically made at a specified perpendicular distance from the selected line.

Figure 4.42: The offset vertical line between the jambs

Figure 4.43: The horizontal guideline drawn through vertical lines

Figure 4.44: The offset horizontal guideline

Figure 4.45: Picking the vertical lines to trim (a), and the result (b)

Figure 4.46: The crossing window for selecting cutting edges
| Note |
If all lines don’t trim the way you expect them to, you may have to change the setting for the Edgemode system variable. Cancel the trim operation and undo any trims you’ve made to the sliding glass door. Type edgemode, and then type 0. Now start the Trim command and continue trimming.
|
To finish the sliding glass doors, you need to draw in two lines to represent the glass panes for each door panel. Each pane of glass is centered inside its frame, so the line representing the pane will run between the midpoints of the inside edge of each frame section.
Then select the Perpendicular Osnap button from the Object Snap toolbar and move the cursor to the other frame section of that door panel. When you get near the horizontal line that represents both the inside edge of one frame section and the back edge of the frame section next to it, the colored Perpendicular Osnap symbol will appear on that line. When it does, select that point.

Figure 4.48: The finished sliding glass doors (a), and the floor plan with all doors finished (b)
This completes the doors for the floor plan. The focus here has been on walls and doors and the strategies for drawing them. As a result, you now have a basic floor plan for the cabin, and you will continue to develop this plan in the next chapter.
The overall drawing strategy that has been emphasized in this chapter is using objects already in the drawing to create new ones. You started with four lines that constituted the outside wall lines. By offsetting, filleting, extending, and trimming, you drew all the walls and openings without drawing any new lines. For the swinging doors, you made two rectangles and two arcs. Then by copying, rotating, and mirroring, you formed the other two swinging doors. For the sliding glass door, you drew two new lines; then you used Offset, Trim, and Erase to finish the door. So you used four lines and created six new objects to complete the walls and doors. This is a good start in learning to use AutoCAD wisely.
Throughout this chapter, I have indicated several instances when you can press the spacebar instead of the key. This can be handy if you keep one hand resting on the keyboard while the other hand controls the mouse. For brevity, I will continue to instruct you to use and not mention the spacebar, but as you get better at drawing in AutoCAD, you may find the spacebar a useful substitute for in many cases. You will find your preference. You can substitute the spacebar for when handling the following tasks:
| Note |
When you used the Rectangle command to draw the swinging doors, you had to use relative Cartesian coordinates because relative polar coordinates would have required you to know the diagonal distance across the plan of the door and the angle of that distance as well. |
By working with the tools and strategies in this chapter, you now should have an idea of an approach to drawing many objects. In the next chapter, you will continue in the same vein, learning a few new commands and strategies as you add steps, a balcony, a kitchen, and a bathroom to the floor plan.
If you would like to practice the skills you have learned so far, here are some extra exercises.
Here is a simplified version of the sliding glass door of the cabin. It doesn’t include any representation of the panes of glass and their frames.

To draw it, use a technique similar to the one described in the previous section. Copy the jambs for the 7' opening to the right, and draw this door between them.
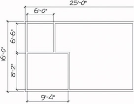
This addition is connected to the cabin by a sidewalk and consists of a remodeled two-car garage in which one car slot has been converted into a storage area and an office (see Figure 4.49). Use the same commands and strategies you have been using up to now to draw this layout adjacent to the cabin. Save this exercise as Cabin04c-addon.dwg.

Figure 4.49: The garage addition
Refer to this chapter and the previous one for specific commands. Here is the general procedure:
Use the tools you have learned in the last few chapters to draw the top, right side, and front views of the block shown in Figure 4.50.

Figure 4.50: The block
Below is a graphic representation of the twelve steps necessary to complete the exercise.

Here are the 12 steps in summary that correspond to the 12 drawings. Start with the top view:
Next, do the right side view:
Finally, draw the front view:
This ends the exercise. There are ways to rotate and move each view relative to the other views. We will look at those commands later in the book, and draw more views in Chapter 8.
Introduction