Dimensions are the final ingredient to be added to your drawing. To introduce you to dimensioning, I’m going to follow a pattern similar to the one I used in the previous chapter on text.
Dimension styles are similar to text styles, but are more complex. You set them up in the same way, but many parameters control the various parts of dimensions, including the dimension text.
Before you start setting up a dimension style, you need to make a few changes to your drawing to prepare it for dimensioning.

Figure 11.1: The floor plan of Cabin10c with the Dimension toolbar centered at the top of the drawing area
Each dimension has several components: the dimension line, arrows or tick marks, extension lines, and the dimension text (see Figure 11.2). An extensive set of variables that is stored with each drawing file controls the appearance and location of these components. You will work with these variables through a series of dialog boxes that have been designed to make setting up a dimension style as easy and trouble free as possible. Remember that AutoCAD is designed to be used by drafters from many trades and professions, each of which has its own standards for drafting. To satisfy these folks’ widely varied needs, AutoCAD dimensioning features have many options and settings for controlling the appearance and placement of dimensions in drawings.

Figure 11.2: The parts of a dimension
Naming a Dimension Style
Every dimension variable has a default setting, and these as a group constitute the default Standard dimension style. As in defining text styles, the procedure is to copy the Standard dimension style and rename the copy—in effect, making a new style that is a copy of the default style. You then make changes to this new style so it has the settings you need to dimension your drawing.

Figure 11.3: The Dimension Style Manager dialog box


Figure 11.4: The New Dimension Style dialog box with DimPlan as the current style and Lines And Arrows as the active tab
Using the Lines And Arrows Tab
You will use the Lines And Arrows tab to control the appearance of the dimension and extension lines, the arrowheads, and the center marks.
Tick marks are used almost exclusively by the architecture profession. This list contains options for several kinds of arrowheads, dots, and so on.
Before saving these changes, make some more modifications to the DimPlan style.
Making Changes in the Text Tab
The settings in the Text tab control the appearance of dimension text and how it is located relative to the dimension and extension lines.
If you need a reminder on creating text styles, refer to Chapter 10. Apply this text style to make it current, and then close the Text Style dialog box.
Many trades and professions use the Centered option for vertical text placement and the Horizontal option for text alignment.

Figure 11.5: The Text tab with settings for the DimPlan style
There are four more tabs with settings, but we’ll be making changes in only two of them: Fit and Primary Units.
Working with Settings in the Fit Tab
The settings in the Fit tab control the overall scale factor of the dimension style and how the text and arrowheads are placed when the extension lines are too close together for both text and arrows to fit.
For your own work, you may have to experiment with the settings on this tab.

Figure 11.6: The new settings in the Fit tab
Setting Up the Primary Units Tab
In the preview window, you may have noticed that the numbers in the dimension text maintained a decimal format with four decimal places, rather than the feet and inches format of the current Architectural units. Dimensions have their own units setting, independent of the basic units for the drawing as a whole. In the Primary Units tab, you will set the dimension units.
| Note |
Zero Suppression controls (a) whether the zero is shown for feet when the dimensioned distance is less than one foot and (b) whether the zero is shown for inches when the distance is a whole number of feet. For the cabin drawing, we will suppress the zero for feet, but we will show the zero for inches. So 9" will be shown as 9", and 3' will be shown as 3'-0". |

Figure 11.7: The Primary Units tab after changes have been made
Of the last two tabs, Alternate Units can be used by any industry involved in global projects, and Tolerances are used mostly by the mechanical engineering trades and professions. We won’t need to make any changes to these tabs for this tutorial, but we’ll take a brief look at those tabs before we start dimensioning the cabin.
It’s time to save these setting changes to the new DimPlan dimension style and begin dimensioning the cabin.

Figure 11.8: The Dimension Style Manager dialog box with DimPlan listed
DimPlan is displayed with a gray swatch in the Styles list box, along with Standard. In the lower-right corner of the dialog box, in the Description area, the following information is presented about the new style: the name of the original style that the new style is based on and the changes that were made to the original style to create the new style. Unfortunately, the area is much too small to display all the changes we’ve made, so use the chart later in this section as a reference.

You have made changes to 17 settings that control dimensions. This is not too many, considering that there are more than 50 dimension settings. Here is a summary of the changes you’ve made to make the dimensions work with the cabin drawing:
|
Tab |
Setting |
Default Setting |
DimPlan |
|---|---|---|---|
|
Lines And Arrows |
Arrowheads |
Closed Filled |
Architectural Tick |
|
Arrowhead Size |
3/16" |
1/8" |
|
|
Dim Line Extension |
0" |
3/32" |
|
|
Ext. Line Extension |
3/16" |
1/8" |
|
|
Text |
Text Style |
Standard |
DimPlan |
|
Text Height |
3/16" |
3/32" |
|
|
Text Vertical Justification |
Centered |
Above |
|
|
Offset From Dim Line |
3/32" |
3/32" |
|
|
Text Alignment |
Horizontal |
Aligned With Dimension Line |
|
|
Fit |
Fit Options |
Either—whichever is best |
Text |
|
Text Placement |
Beside The Dimension Line |
Over the Dimension Line, Without A Leader |
|
|
Overall Scale |
1.0000 |
96.0000 |
|
|
Primary Units |
Unit Format |
Decimal |
Architectural |
|
Fraction Format |
Horizontal |
Diagonal |
|
|
Zero Suppression |
Feet, Inches |
Feet only |
|
|
Angular Precision |
No decimal places |
Two decimal places |
You will change a few more settings throughout the rest of this chapter as you begin to dimension the cabin in the next set of exercises. Let’s look briefly at the Alternate Units and Tolerances tabs.
The Alternate Units Tab
If your work requires your dimensions to display both Metric and Architectural units, use the Alternate Units tab in the New Dimension Style dialog box. In the example shown here, the primary units are Architectural and were set in the previous section. Now we’ll set up the alternate units.
If you want centimeters to be the alternate units, change the Multiplier For Alt Units setting to 2.54 and set the precision to 0.00.

Figure 11.9: The Alternate Units tab after being set up for millimeters (a) and the resulting horizontal dimensions (b)
The Tolerances Tab
AutoCAD offers features whose options help you create several kinds of tolerances. In the Tolerances tab, you have four methods for doing what is called lateral tolerances, the traditional kind of tolerance that most draftspeople are familiar with. This is the plus or minus kind of tolerance. Take a look at the choices in the Method drop-down list shown in Figure 11.10. Each of these is a method for displaying a plus/minus type of tolerance:
SymmetricalThis method is for a single plus-or-minus expression after the base dimension; used when the upper allowable limit of deviation is identical to that for the lower limit, as in 1.0625 0.0025.
DeviationThis method is for the instance in which the upper allowable deviation is different from that of the lower deviation. For example, the upper limit of the deviation can be +0.0025, and the lower limit can be –0.0005. As in the Symmetrical method, these follow the base dimension.
LimitsIn this method, the tolerances are added or subtracted to the base dimension, resulting in maximum and minimum total values. The maximum is placed over the minimum. In the example for the Symmetrical method, 1.0650 would be the maximum and on top of 1.0600, the minimum.
BasicThe base dimension is left by itself, and a box is drawn around it, indicating that the tolerances are general, apply to several or all dimensions in boxes, and are noted somewhere else in the drawing. Often, basic dimensions are shown when a dimension is theoretical or not exact.

Figure 11.10: The top of the Tolerances tab, showing the Method drop-down list options
When you select one of these options, the settings in the tab become available. If you select Deviation, all settings become available.
PrecisionControls the overall precision of the tolerances.
Upper Value and Lower ValueThe actual values of the tolerances.
Scaling For HeightThe height of the tolerance text. A value of 1 here sets the tolerance text to match that of the base dimension. A value of greater than 1 makes the tolerance text greater than the base dimension text, and a value of less than 1 makes it smaller than the base dimension text.
Vertical PositionWhere the base dimension is placed vertically relative to the tolerances. It can be in line with the upper or lower tolerance or in the middle.
The Zero Suppression areas at the bottom, when checked, suppress extra zeros that occur before or after the decimal point. If you set up the Tolerances tab as shown in Figure 11.11a, a dimension looks like the one shown in Figure 11.11b.

Figure 11.11: The Tolerances tab with some settings changed (a), and a dimension with deviation tolerances (b)
A more complex family of tolerances is available through the Dimension toolbar. It’s called geometric tolerancing and involves setting up a series of boxes that contain symbols and numbers that describe tolerance parameters for forms, positions, and other geometric features. Usually there are two to six boxes in a row with the possibility of multiple rows. These all constitute the feature control frame, which eventually is inserted in the drawing and attached in some way to the relevant dimension.



You can insert any of these three symbols in Tolerance 2 and Datum 1, 2, or 3, if you need them.


This exercise is intended solely to show you the tools that AutoCAD provides for setting up the most commonly used lateral and geometric tolerances when you use the Tolerances tab in the Dimension Style Dialog box and the Tolerance button on the Dimension toolbar. My intention here is not to explain the methodology of geometric tolerances or the meanings of the various symbols, numbers, and letters used in them. That is a subject beyond the scope of this book.
Upon returning to your drawing, it should still look almost exactly like Figure 11.1 (shown earlier), and it should have the following:
First, you will dimension across the top of the plan, from the corner of the building to the center of the interior wall, then to the other corner. You’ll then dimension the roof.

Figure 11.12: Selecting the jamb with Midpoint Osnap

Figure 11.13: The dimension attached to the cursor (a), and adjusted after placement (b)
Your first dimension is completed.
When dimensioning walls, you usually dimension to the outside of the exterior ones and to the center of the interior ones. The next dimension will run from the right side of the first dimension to the right corner.
| Note |
Studs are the vertical 2" 4" or 2" 6" members in the framing of a wall. When dimensioning buildings that have stud walls, architects usually dimension to the face of the stud for the outside walls, but I am not able to go into that level of detail in this book. |
The Continue Command
AutoCAD has an automatic way of placing adjacent dimensions in line—the Continue command.

Figure 11.14: The result of zooming and panning for a view of the top of the floor plan

Figure 11.15: The completion of the Continue command
With the Continue command, you can dimension along a wall of a building quickly, just by picking points. AutoCAD assumes that the last extension line specified for the previous dimension will coincide with the first extension line of the next dimension. If the extension line you need to continue from is not the last one specified, press at the prompt, pick the extension line you want to continue from, and continue the command.
Another automatic routine that can be used with linear dimensions is called Baseline.
The Baseline Command
The Baseline command gets its name from a style of dimensioning called baseline, in which all dimensions begin at the same point (see Figure 11.16). Each dimension is stacked above the previous one. Because of the automatic stacking, you can use the Baseline command for overall dimensions. AutoCAD will stack the overall dimension a set height above the incremental dimensions.

Figure 11.16: An example of baseline dimensions

Figure 11.17: The completion of the overall dimension with the Baseline command
The Baseline command assumes the baseline is the first extension line of the last dimension. For the cabin, that would be the extension line that extends to the center of the interior wall. You want the baseline to be the extension line above the upper-left corner of the walls, so press to select that extension line.
It would be nice to have a dimension for the roof spaced the same distance above the overall dimension as the overall dimension is spaced above the incremental dimensions. The Baseline command can help you do this.

Figure 11.18: The result of the second use of the Baseline command (a), starting grips to modify the dimension (b), and the result (c)
This completes the horizontal dimensions for the back wall.
Because the Linear command can be used for vertical and horizontal dimensions, you can follow the steps in the previous exercise to do the vertical dimensions on the left side of the floor plan. The only difference from the horizontal dimensioning is that there is no jamb line whose midpoint can be used to establish the center of the interior wall between the bedroom and bathroom. You will draw a guideline—the same one you drew in the last chapter to help make the grid. The following steps will take you through the process of placing the first vertical dimension. You’ll then be able to finish the rest of them by yourself.

Figure 11.19: The result of zooming and panning for a view of the left side of the floor plan
You drew the same guideline in Chapter 10 when you drew the structural grid.

Figure 11.20: A guideline is drawn to help find the center of an interior wall (a), and the first vertical dimension is placed (b).
Finishing the Vertical Dimensions
You place the rest of the vertical dimensions using the procedure you used to complete the horizontal dimensions. Here is a summary of the steps:
Look back at the previous section if you need more detailed instructions. The completed vertical dimensions will look like Figure 11.21.

Figure 11.21: The completed vertical dimensions
The next area to dimension is the balcony.
| Tip |
When you have a floating toolbar on the screen, using the Zoom Window command doesn’t take into account the area that the floating toolbar takes up. When you can, it’s better to use Realtime Pan and Zoom to adjust your view in this situation. |

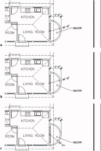
Figure 11.22: The horizontal balcony dimension
This will be enough on vertical and horizontal linear dimensions for now. Let’s take a look at some other kinds of dimensions.
AutoCAD provides tools for placing radial and angular dimensions on the drawing and for placing linear dimensions that are neither vertical nor horizontal. You’ll use the Radial command to dimension the inside radius of the balcony.
On the Dimension toolbar are icons for radial and diameter dimensions. They both operate the same way and are controlled by the same settings.

| Tip |
The icons on the toolbars don’t really look like buttons until you move the pointer cursor onto them. In this book, I refer to them as both icons and buttons. |
| Note |
Most of the commands used for dimensioning are prefaced with a “dim” when you enter them at the command line, and that is the actual name of the command. For example, when you click the Radius Dimension button on the Dimension toolbar or choose Dimension Radius on the menu bar, you will see _dimradius in the Command window to let you know that you have started the Dimradius command. You can also start this command by typing dimradius or dra (the shortcut alias). |

Figure 11.23: The radial dimension initially positioned in the arc
We will have to alter the dimension style to specify an arrowhead for radial dimensions.
Parent and Child Dimensioning Styles
The DimPlan dimension style that you set up at the beginning of this chapter applies to all dimensions and is called the parent dimension style. But you can change settings in this dimension style for particular types of dimensions, such as the radial type, for example. This makes a child dimension style. The child version is based on the parent version, but has a few settings that are different.
In this way, all your dimensions will be made using the DimPlan dimension style, but radial dimensions will use a child version of the style. Once you create a child dimension style from the parent style, you refer to both styles by the same name, and you call them a dimension style family.

Figure 11.24: The Dimension Style Manager dialog box with DimPlan current


Figure 11.25: The radius dimension for the balcony
When placing the radial dimension, you have control over the angle of the dimension line (by where you pick the arc) and the location of the dimension text (by where you pick the second point).
The balcony also needs to be given a name in the drawing, like the other rooms.
Use the Leader command to draw an arrow to the balcony and place the text outside the arcs. Before you do that, you need to adjust a few dimension style settings for the leader dimension.
| Tip |
If you want the Balcony label text in the same text style as the room labels, you can change the Text Style in the Text Appearance area of the Text tab to the Label text style. |

Figure 11.26: The leader line being drawn (a), and the completed leader (b)
| Note |
If the angle of the leader line is steeper than 15, a short horizontal line called a dogleg or hook line is added between the leader line and the text. |
This exercise got you started using the Leader command. Later in this chapter, in the section on modifying dimensions, you will get another chance to work with leader lines and their text. Next, I will introduce you to two more types of dimensions.
To get familiar with the aligned and angular dimension types, play around with the two commands, using the roof lines to experiment. Here’s how to set up Cabin11a to work with aligned and angular dimensions:
Aligned Dimensions
Aligned dimensions are linear dimensions that are not horizontal or vertical. You place them in the same way that you place horizontal or vertical dimensions with the Linear command. You can also use the Baseline and Continue commands with aligned dimensions.
Use the Aligned command to dimension a hip line of the roof. Try it on your own. Follow the prompts. It works just like the Dimlinear command, except that the dimension is not displayed on the drawing until you finish the command.
Start the Aligned command by clicking the Align button on the Dimension toolbar. Look ahead to Figure 11.27 to see the results you should get.
Angular Dimensions
The angular dimension is the only basic dimension type that uses angles in the dimension text instead of linear measurements. Generally, tick marks are not used with angular dimensions, so you need to create another child dimension style for this type of dimension. Follow the steps given earlier in this chapter for setting up the Radial and Leader child styles. The only change you need to make is on the Lines And Arrows tab: replace the Architectural tick with the Right-Angle arrowhead.
Try making an angular dimension on your own. You can start the Angular command by clicking the Angular button on the Dimension toolbar. Follow the prompts and see if you can figure out how this command works.
Figure 11.27 illustrates angular and aligned dimensions on the roof.

Figure 11.27: The roof with angular and aligned dimensions
Don’t save your drawing as is. Instead, type undo, and then type b. This will undo the angular and aligned dimensions you just created and the Dim2 dimension style and leave your drawing at the state it was in when you last saved it as Cabin 11a.
When you change settings for a dimension style, dimensions created when that style was current will be automatically updated to reflect the changes. You’ll modify more dimensions in the next section.
You have been introduced to the basic types of dimensions—linear, radial, leader, and angular—and some auxiliary dimensions—baseline, continue, and aligned—that are special cases of the linear type. The baseline and continue dimensions can also be used with angular dimensions.
Ordinate Dimensions
Ordinate dimensions are widely used by the mechanical and civil engineering professions and related trades. They differ from the kind of dimensioning we have been doing so far in this chapter in that ordinate dimensioning specifies X and Y coordinate values for specific points in a drawing based on an absolute or relative Cartesian coordinate system, rather than on a distance between two points. This method is used to dimension centers of holes in sheet metal or machine parts and to locate surveying points on an area map.
We don’t need ordinate dimensions in our cabin project, so we will go through a quick exercise in setting them up to dimension the holes in a plate. This will give you a glimpse of the tools that AutoCAD provides for working with them. If you are not interested in ordinate dimensioning, move on to the next section on modifying the dimensions we’ve already created for the cabin.
What we care about with ordinate dimensioning is not how far apart the holes are from each other, but how far the X and Y coordinates of the centers of the holes are away from some reference point on the plate. We’ll use the upper-left corner of the plate as our reference point, or datum point, because it is positioned at the origin of the drawing, or at the 0,0 point.

Figure 11.28: Placing the first ordinate dimension (a), finishing up the X coordinate dimensions (b), and placing the Y coordinate dimensions (c)
In civil engineering, ordinate dimensions are used almost the same way, but displayed differently. A datum reference point is used, but the dimensions are displayed at each point. This is because the points are a set of surveying points spread randomly over a large area, and the datum or reference point may be miles away (see Figure 11.29).

Figure 11.29: A sample surveyor’s datum points with ordinate dimensions
The final part of this chapter will be devoted to teaching you a few techniques for modifying dimensions.
You can use several commands and grips to modify dimensions, depending on the desired change. You can:
The best way to understand how to modify dimensions is to try a few.
You can modify any aspect of the dimension text. We’ll look at how to change the content first.
Editing Dimension Text Content
To change the content of text for one dimension, or to add text before or after the actual dimension, use the Ddedit command. (You used this command in Chapter 10 to modify text.) We’ll change the text in the horizontal dimensions for the roof and walls.

Figure 11.30: A modified view of the floor plan


Figure 11.31: Adding a phrase to dimension text (a), adding a special character (b), and editing more than one dimension text at a time (c)
If you need to change the text of several dimensions at once, use the Dimedit command.
Next, you’ll learn about moving a dimension.
Moving Dimensions
You can use grips to move dimensions. We used grips to move the extension line of the roof dimension when we were putting on the vertical and horizontal dimensions. This time we’ll move the dimension line and the text.

Figure 11.32: Moving the balcony dimensions with grips: the Linear dimension (a), the leader (b), and the Radial dimension (c)
To finish the changes to the balcony, you need to suppress the left extension line of the 5'-0" dimension because it overlaps the wall and header lines.
You suppress the left extension line with the Properties command, which allows you to change a setting in the dimension style for one dimension without altering the style settings.

Figure 11.33: The 5'-0" dimension with the left extension line suppressed
The bedroom needs a horizontal dimension. Because space outside the floor plan is tight, you’ll place the dimension inside the bedroom and suppress both extension lines with an override to the current dimension style.

Figure 11.34: The completed bedroom dimension
Introduction