The floor plan of a complex building project may actually be a composite of several AutoCAD files that are linked together as external references to the current drawing. This enables parts of a drawing to be worked on at different workstations (or in different offices) while remaining linked to a central host file. In mechanical engineering, a drawing may similarly be a composite of the various subparts that make up an assembly.
External references are .dwg files that have been temporarily connected to the current drawing and are used as reference information. The externally referenced drawing is visible in the current drawing. You can manipulate its layers, colors, linetypes, and visibility, and you can modify its objects, but it is not a permanent part of the current drawing.
External references are similar to blocks in that they behave as single objects and are inserted into a drawing in the same way. But blocks are part of the current drawing file, and external references are not.
Blocks can be exploded back to their component parts, but external references cannot; however, external references can be converted into blocks and become a permanent part of the current drawing. In Chapter 7, you were able to modify the window block, and in so doing, update all instances of the window block in the drawing without having to explode the block. With an external reference—usually called an Xref—the same mechanism can be applied. To manage external references, you need to learn how to set up an Xref, manipulate its appearance in the host drawing, and update it.
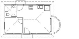
Before you set up the Xref, you will create a site plan for the cabin. You will then Xref the cabin drawing into the site drawing. In Figure 12.1, the lines of the cabin floor plan constitute the Xref, and the rest of the objects are part of the host drawing. After these exercises, we will look at a few ways that design offices use external references.

Figure 12.1: The site plan with the cabin as an external reference
The site plan you will use has been simplified so that you can draw it with a minimum of steps and get on with the external referencing. The following are essential elements:
The first step is to draw in the property lines.
You draw property lines using Surveyor units for angles and decimal feet for Linear units. In laying out the property lines, you will use relative polar coordinates, so you will enter coordinates in the format @distance<angle, in which the distance is in feet and hundredths of a foot, and the angle is in Surveyor units to the nearest minute.
Surveyor Units
Surveyor units, called bearings in civil engineering, describe the direction of a line from its beginning point. The direction (bearing), described as a deviation from the north or south toward the east or west, is given as an angular measurement in degrees, minutes, and seconds. The angles used in a bearing can never be greater than 90, so bearing lines must be headed in one of the four directional quadrants: northeasterly, northwesterly, southeasterly, or southwesterly. If north is set to be at the top of a plot plan, south is down, east is to the right, and west is to the left. Thus, when a line from its beginning goes up and to the right, it is headed in a northeasterly direction. And when a line from its beginning goes down and to the left, it is headed in a southwesterly direction, and so on. A line that is headed in a northeasterly direction with a deviation from true north of 30 degrees and 30 minutes is shown as N30d30' E in AutoCAD notation.

With the Surveyor unit system, a sloping line that has an up-and-to-the-left direction would have a down-and-to-the-right direction if you started from the opposite end. So in laying out property lines, it is important to move in the same direction (clockwise or counterclockwise) as you progress from one segment to the next.
Laying Out the Property Lines
You will set up a new drawing and then start at the upper-right corner of the property lines and work your way around counterclockwise.
We are using Decimal linear units in such a way that 1 decimal unit represents 1 foot. The foot symbol (') is used only with Architectural and Engineering units.

Figure 12.2: The site drawing with the grid on
@90<s42d30'w
@140<s67d30'e
@80<n52d49'e
c
The property lines are completed (see Figure 12.3).

Figure 12.3: The property lines on the site drawing
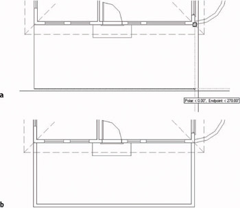
The driveway is 8' wide and set 5' from the horizontal property line. The access road is 8' from the parallel property line. The intersection of the access road line and the driveway lines forms corners, each with a 3' radius. The driveway extends 70' in from the upper-right corner of the property.
Let’s lay this out now.
You can also start the Scale command by choosing Modify Scale from the menu bar or by typing sc.

Figure 12.4: Offset property lines (a), and the completed intersection of the driveway and access road (b)
Finishing the Driveway
A key element of any site plan is information that shows how the building is positioned on the site relative to the property lines. Property lines are staked out by surveyors. The building contractor then takes measurements off the stakes to locate one or two corners of the building. In this site, you need only one corner because we are assuming the cabin is facing due west. A close look at Figure 12.1, shown earlier in this chapter, shows that the end of the driveway lines up with the outer edge of the back step of the cabin. Below the driveway is a square patio, and its bottom edge lines up with the bottom edge of the back step. So the bottom corner of the back step coincides with the lower-left corner of the patio. This locates the cabin on the site (see Figure 12.5).

Figure 12.5: The driveway and patio lined up with the cabin
Imagine the site being on a bluff of a hill overlooking land that falls away to the south and west, providing a spectacular view in that direction. To accommodate this view, we will want to change the orientation of the cabin when we Xref it into the site drawing.

Figure 12.6: The offset lines (a), and the finished driveway and patio (b)
This completes the site plan. The next step is to attach the cabin drawing as an external reference into the site plan.
When you set up an external reference, you go through a process similar to that of inserting a block into a drawing, as you did in Chapter 7. You select the drawing to be referenced and specify the location of its insertion point. There are options for the X scale factor, Y scale factor, and rotation angle, as there are for inserting blocks. And here, as with blocks, you can set up the command so that it uses the defaults for these options without prompting you for your approval.
You can run all external reference operations through the Xref Manager dialog box, which you can open by choosing Insert Xref Manager from the menu bar or by typing xr. To set up a new external reference, choose Insert External Reference.
There is also a Reference toolbar that has five command buttons related to Xrefs. You open it the same way you opened the Dimension toolbar in the last chapter: Right-click any button on the screen, and then choose Reference from the shortcut menu. But unless you’re an advanced user, I don’t recommend using the Reference toolbar while working through this chapter, for two reasons. First, there are seven other buttons on the toolbar used for Image commands that allow you to import raster drawings into AutoCAD, an operation not covered in this book. Second, the toolbar does not include all the Xref commands we will be covering. If you have already opened this toolbar, click the X in the upper-right corner to close it.

The file being referenced, Cabin12a, is displayed in the drop-down list at the top of the dialog box, with the full path of the file’s location just below. The bottom half contains three options for the insertion process, which are like those in the Insert dialog box that you used for inserting blocks in Chapter 7. Note that only the insertion point is specified on-screen. The Scale and Rotation options should be set to use their default settings. If they are not, click the appropriate check boxes so that this dialog box matches that in the previous graphic.

Figure 12.7: The Cabin12a drawing attached to the Site12a drawing
The attached Xref appears exactly as it did when it was the current drawing. When we use this file as part of a site plan, we don’t want all the information in Cabin12a to be visible. In fact, we want most of the information invisible. We will accomplish this by freezing many of the layers in the Xref drawing.
Xref layers will be part of the list of layers for the current, or host, drawing. But the name of the Xref file is added to the front of the layer’s previous name, separated from the layer’s previous name by a vertical bar ( | ).


Here’s how to do this:
We are freezing layers here rather than turning them off because we don’t expect them to be made visible again for quite a while.

Figure 12.8: The site plan with most of the cabin layers frozen
You can resize the Layer Properties Manager dialog box to display more layers at a time. Depending on the size of your screen and your screen resolution, you might be able to view all Xref layers at once.
Using Layer Filters
On the left side of the Layer Properties Manager dialog box, take a look at the Layer Filter Tree View box. Here’s where you control which layers are displayed in the Layer List on the right.
The Defpoints layer holds information about dimensions and is always part of the host file layers.

Figure 12.9: The Layer Filter Properties dialog box
Let’s set up a filter for the four layers in the Xref that we are going to keep visible in the site drawing.

Figure 12.10: The new Cabin Visible filter in the Layer Filter Properties dialog box

Figure 12.11: The result of the Cabin Visible filter in the Layer Properties Manager dialog box
Using the Group Filters Option
In the Layer Properties Manager dialog box, in the upper-left corner, the second of the three buttons is the New Group Filter button. Click this button to create a filter made up of layers that have some characteristic in common, such as those layers containing any kind of text. For example, to filter out all layers that don’t have text on them, click the New Group Filter button, and rename the filter to, for example, Text Layers. You can then add layers to the new filter in two ways:
After the filter is set up, it behaves just like the Properties filters.
We have one more change to make to these four layers. Because we want the visible parts of the cabin to read as a unit, we will assign the same color to all the thawed cabin layers. Let’s make those changes now.
Now you need to move the cabin and rotated it to its position next to the patio.

Figure 12.12: The cabin rotated (a), and positioned next to the patio (b).

Figure 12.13: The cabin Xref is located on the site drawing.
You have established Cabin12a as an external reference in this drawing and modified the appearance of some of the Xref’s layers. The next step is to make some revisions to Cabin12a and see how this affects the Xref.
Using the Layer States Manager
You use the Layer States Manager tool to save the current setup of various properties and states of layers in the current drawing. You can activate it by clicking the Layer States Manager button in the Layer Properties Manager dialog box. All the operations for controlling the Layer States Manager are performed through this dialog box. Here’s how to work your way through it.
To set up a new layer state, follow these steps:
You also use the Layer States Manager dialog box to manage existing layer states. Here are its features:
Layer States List BoxDisplays a list of previously set up layer states.
Restore ButtonRestores the layer state that is highlighted in the Layer States list box.
Delete ButtonDeletes a layer state. This does not affect the current layer setup.
Import ButtonImports a .las file as a new layer state in the current drawing.
ExportExports the chosen saved layer state to be saved as a .las file.
To modify a layer state, restore it to be the current layer state, and then change it.To rename a layer state, highlight it, click its name, and type the new name.
You can modify an Xref drawing by making it the current drawing, making the modification, saving the changes, making the host drawing current, and reloading the Xref. AutoCAD users can also modify an Xref by using a special modification command while the host drawing is current. We’ll start by opening Cabin12a and making an addition to it. Then we’ll make Site12a current again and use AutoCAD to modify Cabin12a as an Xref.
Before we do anything, however, we need to change a setting so that the new layer states and the changes we have made to the layers of the Xref are saved with the host file.

Because we found such a spectacular site for the cabin, we want to add a deck around what was originally the front door and is now the west-facing entrance.

Figure 12.14: The view with selected layers frozen
The Command window shows the polyline width currently set to 3", from when you drew the border and title block in Chapter 10.
Step 8 is for AutoCAD users only. LT users should follow step 8 in the following sidebar.

Figure 12.15: The vertical tracking path (a), and the offset deck line (b)
Step 8 for LT Users
LT users should follow this step:
Now continue with step 9.
This concludes the modifications we will make to the Cabin12a drawing in this exercise, though we will make some more later. Now we can return to the Site12b drawing.
Once an external reference has been set up, you will use the Xref Manager dialog box to control the linkage between the Xref and the host drawing. When the host drawing is opened, it reads the latest saved version of a drawing that is externally referenced to it. Now that we have changed Cabin12a, we need to update the Cabin12a Xref to reflect those changes.


Figure 12.16: The Site12b drawing with the revised Xref of the cabin
In this exercise, you have seen how a host drawing is updated when the drawing that is externally referenced is made current, modified and saved, and then updated as an Xref. You also saw how you can control the appearance of objects in the Xref drawing from the host drawing by working with the Xref layers. This is a good example of the power of layers. You can set them up one way in the actual drawing and another way in the Xref of that drawing in a host file. In fact, you can Xref the same drawing into any number of host files; have the layer characteristics of visibility, color, and linetype be different in each host file; and save them as such with each host file. Xref is a powerful feature of AutoCAD, and you will learn more about the possible applications of this tool toward the end of this chapter.
|
|
In Chapter 7, we used the In-Place Xref And Block Edit command to update the window block. You can use the same tool here for editing an Xref while the host drawing is the current drawing. You can’t create a new layer with this tool, but many of the regular editing commands are available when you use it. We’ll make a few modifications related to the new deck to illustrate this feature. |
AutoCAD LT 2005 doesn’t have the In-Place Xref And Block Edit feature. To keep your drawing current with the book, read through the following section to see what changes we are making, and then use the technique for modifying Cabin12a that we used in the previous section to draw the new deck. That is, make Cabin12a current, make the modifications described in the following exercise, save the changes, make Site12b current, and use the Xref Manager to reload Cabin12a. Then continue with step 9 in the following exercise.

Figure 12.17: Zooming in for a close-up view of the Xref cabin (a), and the Xref cabin with the step erased and the roof lines filled in

You are now free to use many of the Draw and Modify commands on the lines that we just selected. They are displayed in a slightly darker color than the unselected lines.
The roof lines needing repair may appear normal in this view because they are dashed. As you select them, you will see that they are broken.
| Tip |
The correct fillet will require you to use the ridgeline as one of the lines to fillet, rather than the unbroken hip line, because the latter line was not selected to be part of the Xref edit in step 5. |

Figure 12.18: The Site12b drawing with the revised Xref of the cabin
In this exercise, you have seen how a host drawing is updated when its external reference is changed and how the appearance of objects in the Xref drawing can be controlled from the host drawing by working with the Xref layers. You also saw how you can modify objects in the Xref from the host drawing by using the In-Place Xref Edit tool. A drawing can serve as an external reference in several host drawings at the same time and have a different appearance in each one. The results of in-place Xref editing, however, must be saved back to the original drawing in order to be viewed in the Xref. So in this case, when you open Cabin12a, the front step will be missing. Also, the roof hip lines will be drawn over the room label text, as they were before they were broken in Chapter 10. In-place Xref editing is usually done only when the results are meant to be permanent changes in the original source drawing. We used it in this case only to show you how the feature works.
There are many different uses for external references. I will describe two common applications to illustrate their range.
Let’s suppose you are working on a project as an interior designer and a subcontractor to the lead architect. The architect can give you a drawing of a floor plan that is still undergoing changes. You load this file onto your hard disk, in a specially designated folder, and then Xref it into your drawing as a background— a drawing to be used as a reference to draw over. You can now proceed to lay out furniture, partitions, and so on, while the architect is still refining the floor plan.
At an agreed-on time, the architect will give you a revised version of the floor plan. You will overwrite the one that you have on your computer with the latest version. You can then reload the Xref into your furniture layout drawing, and the newer version of the floor plan will now be the background. In this example, the lead architect might also be sending the same versions of the floor plan to the structural and mechanical engineers and the landscape architect, all of whom are working on the project and using the architect’s floor plan as an Xref in their respective host drawings (see Figure 12.19).

Figure 12.19: A single floor plan as an Xref to three subcontractors
Xrefs are often used when parts of a job are being done in an office where a network is in place. Suppose a project involves work on several buildings that are all on the same site. By using Xrefs, each building can be externally referenced to the site plan. This keeps the site plan drawing file from getting too large and allows the project work to be divided among different workstations, while the project manager can open the host site plan and keep track of progress on the whole project (see Figure 12.20).

Figure 12.20: Three buildings as Xrefs to a single site plan
These two applications for setting up Xrefs in relation to a host file are applicable to almost any profession or trade using AutoCAD.
You have seen how you can change the properties of layers in an Xref and how you can modify an Xref. A few other features of external references deserve mention.
When you attach an Xref to the host drawing, AutoCAD stores the name of the Xref and its path.
| Note |
The path of a drawing file is the name of the drive, folder, and subfolder where a file is stored, followed by the name of the drawing. C: 1-My DocumentsTraining DataSite12b.dwg is the path of the current drawing file. |
Each time you open the host drawing, AutoCAD searches for any Xrefs saved with the host file and displays them in the host drawing. If the Xref drawing is moved to a new folder after the Xref has been attached, AutoCAD won’t be able to find the Xref and can’t display it. To avoid that situation, you must update the host drawing with the new path to the Xref file. We’ll go through a quick exercise to illustrate how this works.

| Warning |
When you’re working with a lot of Xrefs, be careful where you store files that are acting as Xrefs to other files. |
On occasion, you will want to permanently attach an Xref to the host drawing. If you send your drawing files to a printing service to be plotted, including a set of Xref files can complicate things. Also, for archiving finished work, it’s better to reduce the number of files. There may also be occasions when the Xref has been revised for the last time and no longer needs to be a separate file. In all these situations, you will use the Bind command to convert an external reference into a block that will be stored permanently in the host drawing.

The two options in the Bind Type area have to do with how layers are treated when an Xref is bound to the host drawing. The default is Bind. It sets the Xref layers to be maintained as unique layers in the host drawing. With the Insert option, layers that have the same name in the two drawings will be combined into one layer. None of the layers in Cabin12a have the same name as any layers in Site12b. Let’s use the Insert option.
This has been a quick tour of the basic operations that are used to set up and control external references. There are more features and commands for working with Xrefs than I’ve covered here, but you now know enough to start working with them.
What follows are a few additional operations and features that you may find useful when you delve more deeply into external references. Play around a little and see what you can do.
Detach command is a button on the Xref Manager dialog box.
Xreferenced into the host. This is called an overlay and is an option in the Attach Xref dialog box. Overlays ignore nested Xreferences.
In this chapter, you Xreferenced the cabin drawing into the site drawing, as a landscape architect who was designing the development plan for the site might have done. If you were the lead architect, you might want to Xref the landscape architect’s site plan into your cabin drawing. Try doing this.
Introduction