Section 42. Spaghetti (Physical Process) Map


42. Spaghetti (Physical Process) Map

Overview

A Spaghetti Map or Physical Process Map is the simplest Lean Sigma tool. It demonstrates the physical flow of an entity or multiple entity types (product, patient, information, order, and so on) and the associated travel distance for a single cycle of a process. It is a graphical representation of travel distance and travel patterns.

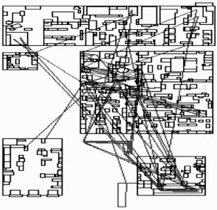
The Spaghetti Map is a particularly useful tool when there is excessive movement of an entity or entities through a process. A highly simple, visual tool, it can help streamline a process and is part of the standard toolkit used when running a kaizen event. In that context, it can show the existing problems in a process and also communicate the potential benefit of change to a new layout or flow, as in Figure 7.42.1.

Figure 7.42.1. Spaghetti Map showing material movement before and after a kaizen event.


Roadmap

To construct the map, the roadmap is as follows:

Step 1.

Determine the scope of the process in question (i.e., the start point, end point, and geographical boundaries of the process).

Step 2.

Sketch or obtain a blueprint or CAD drawing of the facility/process layout as per the geographical boundaries identified in Step 1.

Step 3.

Mark the process locations and steps onto the layout, as shown in the left side of Figure 7.42.2.

Figure 7.42.2. Construction of a Spaghetti Map.


Step 4.

Connect the dots in accordance with the actual travel or walk patterns for the entity. The commonest mistake here is to draw the line "as the crow flies," as shown in Figure 7.42.3. This is incorrect, because entities don't typically tend to fly through the air around a facility. Map the path as the entity actually travels, similar to that shown in Figure 7.42.1. The paths should be drawn for just a single cycle of the process.

Figure 7.42.3. Incorrect use of mapping lines.


Step 5.

Calculate the distances traveled. This is done with a measuring device such as the wheel-on-a-stick contraption or an electronic pedometer. In the case of the kaizen event in Figure 7.42.1, the warehouse in question was quite large and most of the travel distance data came from setting the trip on the odometer of a forklift truck.

Step 6.

After the Current State Map is completed and work is done to improve the layout of the process, a second, Future State Map, is constructed with an indication of the reduction in travel distances, as shown in the right side of Figure 7.42.1.

Interpreting the Output

The output of the Spaghetti Map typically requires no explanation and is a great communication tool for changes made or about to be made.




Lean Sigma(c) A Practitionaer's Guide
Lean Sigma: A Practitioners Guide
ISBN: 0132390787
EAN: 2147483647
Year: 2006
Pages: 138

flylib.com © 2008-2017.
If you may any questions please contact us: flylib@qtcs.net